lab1886: shuttle
europa | europe
das lab1886 shuttle tourt als mobiles innovationslabor der lab1886 gmbh auf verschiedenen etappen durch deutschland und europa. in kreativem umfeld können hier an unterschiedlichsten standorten ideen und projekte gefiltert und gefördert werden.
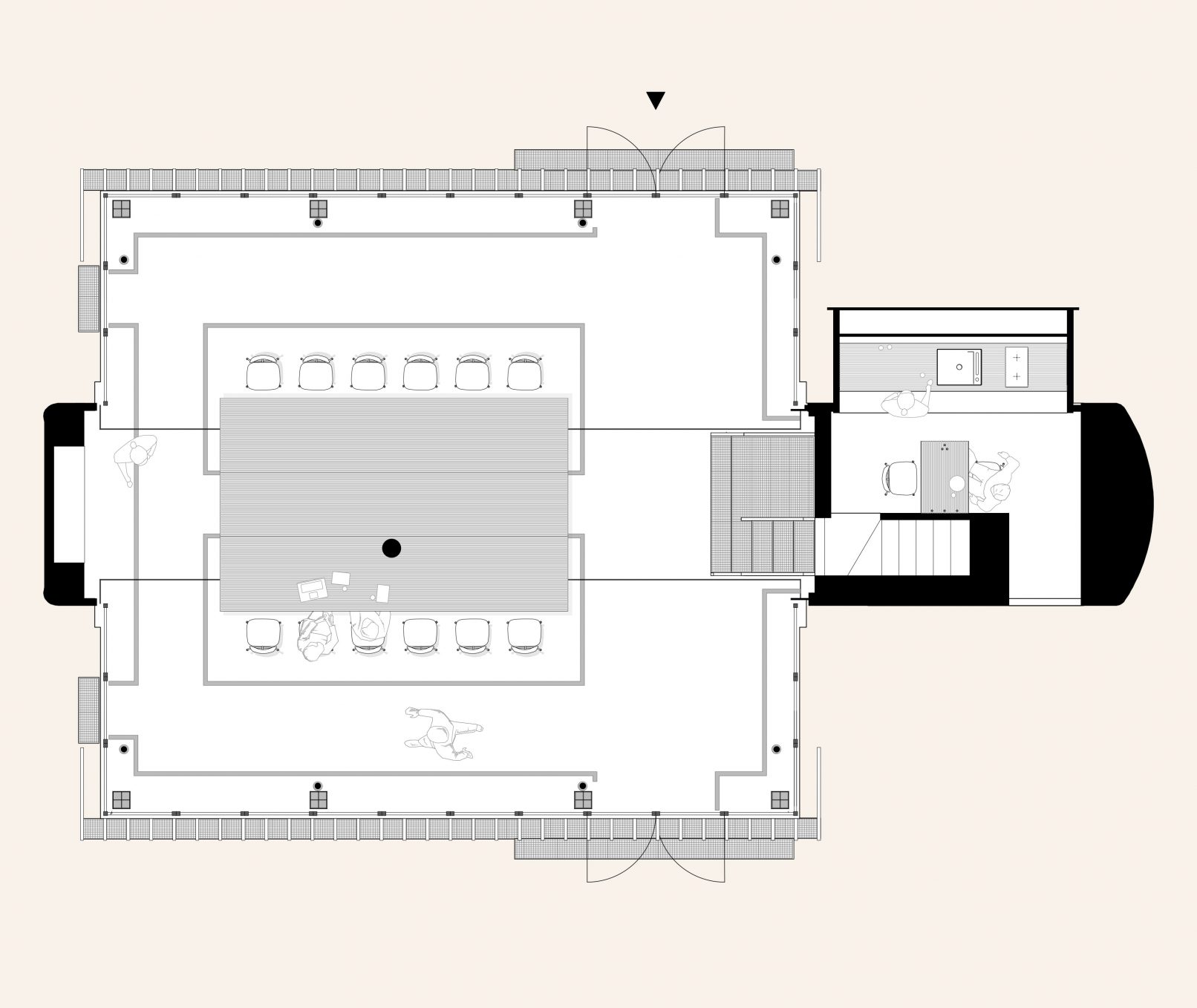
von außen ein großer und schwarzer truck, verwandelt sich dieser vor ort durch aufklappen der seitenwände in einen ca. 80qm großen, fast rundum verglasten multifunktionalen innenraum. zentrales und raumprägendes element bildet eine überdimensionierte wandelbare werkbank aus massiver baubuche welche sowohl zu arbeits- als auch zu präsentationszwecken dient. darüber von der decke abgehangene filzlamellen unterstützen die akustik im raum. in einheitlichem matt schwarz nehmen sich wände und decke zurück und unterscheiden sich nuanciert in der verwendung von industriellem strukturlack und samtig-matten finish. zusätzlich kaschiert ein großmaschiges schwarz gepulvertes streckmetall die ansonsten sichtbare technik im deckenaufbau. kabel mit gelber ummantelung ergänzen sich mit weiteren gelb akzentuierten technisch-funktionale elementen im innenraum. über eine geschweißte stahltreppe gelangt man zum dachterassenaufstieg und zur kleinen teeküche hinter der fahrerkabine: ein knalliger küchen-popout beherbergt eine in ca-gelb gerahmte stahlküche mit lochblechwand als aufbewahrungssystem. hier findet die eigens für das lab1886 erarbeitete corporate architecture ihre erste anwendung: zweckentfremdete elemente kontrastieren ehrliche materialien und schaffen einen raum mit assoziativem werkstattcharakter und funktionaler praktikabilität. der truck wurde in einem äußerst dynamischen und iterativen verfahren in engem austausch mit jan rottkamp aus dem team der lab1886 gmbh, konzeptioniert und umgesetzt.
—
lab1886: shuttle
europe
the lab1886 shuttle tours throughout germany and europe in stages as a mobile innovation lab of lab1886. In a creative environment, ideas and projects can be filtered and promoted at the most diverse locations.
on the outside just another large, black truck, this vehicle transforms on site by opening its side walls, creating an approximately 80 sqm large, almost completely glazed, multifunctional interior. the main focus is an oversized foldable and extendable table of solid construction, which serves both for work and presentation purposes. felt lamellae suspended from the ceiling to regulate the room’s acoustics. uniformly matt black, the walls and ceiling are restrained in character, but marked by slight differences through the use of industrial textured paint and a velvety-matte finish. a large-meshed, black powder-coated expanded metal sheet conceals the otherwise visible technology in ceiling construction. cables with yellow sheathing complement each other with other yellow-accented technical-functional elements in the interior.
a welded steel staircase leads to the roof terrace and to the small kitchen behind the driver’s cab:
a brightly-colored kitchen pop-out accommodates a ca–yellow framed steel kitchen with a perforated plate wall, which functions as a storage system. here, the corporate architecture developed especially for the lab1886 finds its first application: elements that have been misappropriated contrast with genuine materials to create a space with a workshop and practical character. The truck was conceptualized and realized in a highly dynamic and iterative process in close dialogue with Jan Rottkamp of the LAB1886 GmbH Team.
in zusammenarbeit mit der agentur / in collaboration with agency neckarbuben
umsetzung / realization: schuler fahrzeugbau gmbh
- team: alexandra bicheler, milan groß, franziska heller, sarah jansen, stefanie larson, holger lohrmann, eva stainer, svenja stapper, dennis tilke
- fotos / photos: milan groß, tom maurer, volker schrank














